COCINA INDUSTRIAL
- 17 de dic, 2025
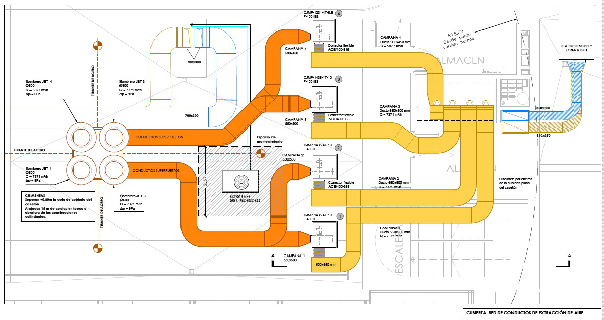
Os presentamos el plano de las instalaciones en la cubierta de un edificio, en la que se centralizan los motores de aspiración que resuelven la ventilación de una cocina industrial que contiene 4 campanas en formato tipo isla. Ha sido un encaje de bolillos intentar cumplir con los espacios de mantenimiento de las máquinas, con las distancias reguladas desde el punto de evacuación de humos hasta cualquier entrada de ...
Leer más



